Río Bravo es una tienda de alta costura, camisería, telas y accesorios para caballero con más de cuatro décadas en el mercado. Una empresa familiar que se ha destacado por ofrecer las mejores telas y la confección más elevada del país. Sus diseños personalizados y calidad en materiales y mano de obra son reconocidos a nivel mundial; por ello son representantes de las marcas más exclusivas de telas y casimires como Dormeuil, Zignone y Holland and Sherry. Su sede ubicada en la calle de Hamburgo, en la colonia Juárez se convirtió en una insignia de elegancia y sofisticación a lo largo de los años. Sin embargo, en recientes fechas tuvieron que mudar la pequeña sastrería a un espacio mas amplio a solo unas calles de su lugar de origen. Dicho cambio sirvió para llevar a cabo un proyecto arquitectónico basado en los principios de la buena confección y elegancia que caracterizan a Río Bravo.
La sede original, poseía una atmósfera muy particular en la que se combinaba la calidez de sus acabados de madera con amplios colgadores saturados de ropa y telas. La escala pequeña del local hacía sentir al usuario en un espacio exclusivo y acogedor. Al mudarse a un espacio de una escala considerablemente mayor, el reto seria tratar de conservar esa sensación de refinamiento y bienvenida que poseía la tienda anterior. Por lo mismo se busco que la gama cromática del local, así como su iluminación crearan esta sensación de comodidad pese a la nueva escala. Los materiales fueron cuidadosamente elegidos ya que la arquitectura tenía que seguir la línea distinguida de las prendas que ahí se exhiben.
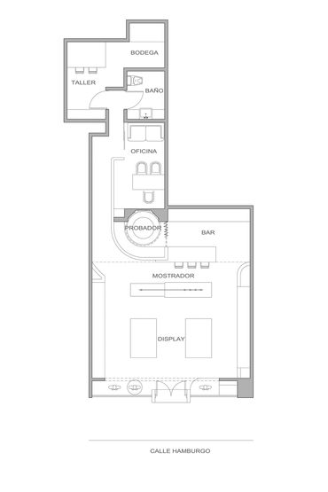
La combinación de maderas, mármoles nacionales, acentos dorados y lambrines textiles crean un espacio elegante y masculino que pretende imitar la atemporalidad de la alta costura que alberga. Los mostradores son bloques de mármol travertino en su acabado natural, tan elementales que sirven como lienzos perfectos para la exhibición y selección de las telas mas prestigiadas del mundo. Un candil, con cinco lámparas de un dorado cepillado, adorna a manera de móvil geométrico la panorámica de la sastrería, tal como los accesorios complementan el buen vestir. Se buscó un estilo sobrio y una sutil combinación de iluminación puntual con indirecta, no solo para crear una atmósfera, sino para generar una experiencia de compra única para el usuario. La geometría del local busca ser elemental en sus formas, compuesta por la intersección de una serie de prismas rectangulares y cilindros, cuyos cambios de superficie son acentuados por los diferentes materiales que los componen.
Fotos: Jaime Navarro




Copyright © 2021 PAIR Arquitectura - Todos los derechos reservados.