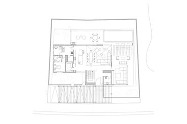
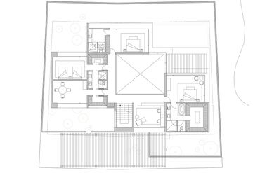
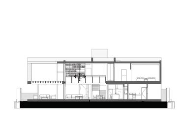
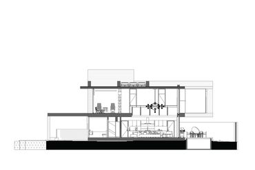
Ubicada dentro de Ciudad Mayakoba en Playa del Carmen, Quintana Roo, la casa Kabah 21 es un proyecto unifamiliar desplantado en dos niveles. El proyecto está diseñado bajo tres premisas: cuidar al máximo la vegetación existente del terreno, crear una casa que resista el embate del entorno selvático en el que se encuentra y desarrollar una unidad de vivienda que se beneficie de la iluminación natural y vistas derivadas de su situación en un entorno natural.
El diseño de la planta arquitectónica busca conservar todos los árboles preexistentes del terreno. Bajo esta premisa se logrará preservar más del 80% de los árboles de distintas especies y reubicar el otro 20% dentro del perímetro del sitio.
La orientación de la casa fue determinada con relación al asoleamiento y también a las vistas hacia el sendero. Por lo mismo, todo el programa arquitectónico goza de una relación interior- exterior muy estrecha. Esto no solo logra integrar a la casa con su entorno natural, sino además permite una ventilación cruzada y un confort térmico derivado del microclima que se genera bajo las copas de los árboles.
Kabah 21 minimiza su huella de carbono al máximo incorporando materiales de la región, manteniendo los movimientos de tierras al mínimo, contando con aislamiento térmico en los techos para minimizar la acumulación de calor y doble acristalamiento en las ventanas. Contará con paneles solares, un sistema de recolección de agua pluvial, planta de tratamiento y sistema de riego por goteo en el huerto.













Copyright © 2021 PAIR Arquitectura - Todos los derechos reservados.