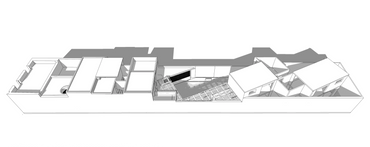
Illumé Boutique Hotel, ubicado en el centro de Mérida, Yucatán, fue diseñado pensando en el entorno que lo rodea, así como las preexistencias del sitio. El objetivo del proyecto fue conservar la esencia de la casona antigua, así como las tradiciones de su sitio, pero con arquitectura y técnicas de construcción que hablen del presente.
La planta arquitectónica se compone de dos niveles, los cuales albergan 9 suites, 5 en la planta baja y 4 en la planta alta, la disposición de los volúmenes responde a la orientación y clima de la zona, esto para crear un microclima y protegerse del calor excesivo de la zona.
Al ingresar a la casona el cliente empieza su recorrido con un recibidor en donde se realizan eventos casuales durante el día, dotando de vida y ambiente el espacio. El recibidor te lleva directo al restaurante y este mismo conecta con la alberca y un bar exterior.
Los materiales, texturas y colores que se usaron fueron sacados del contexto, haciendo honor a las tradiciones yucatecas.















Copyright © 2021 PAIR Arquitectura - Todos los derechos reservados.