Delimitado por el Club de Golf Vidanta al este y el Océano Pacífico al oeste, el departamento Acapulco GP se encuentra en una de las torres más exclusivas de Acapulco, México. Las líneas elegantes y modernas del departamento de cuatro habitaciones son una reinterpretación del estilo local en los años dorados de Acapulco, mientras que la redistribución de su planta arquitectónica fue diseñada de manera eficiente para reducir la necesidad de refrigeración mecánica durante los calurosos meses de verano. Con el objetivo de brindar tranquilidad y un ambiente relajado, el proyecto aplicó una reinterpretación de las texturas y los colores de la playa de manera que el usuario pudiera tener el lugar perfecto para una escapada.
Antes de la intervención, el departamento tenía materiales viejos desgastados, con tonos que no eran apropiados para el clima de Acapulco y sus espacios estaban demasiado compartimentados. Teniendo esto en cuenta, el proyecto se centró en hacer un diseño atemporal, en forma y función, con un rango cromático en tonos neutros y terrosos, una planta libre que aumentara la circulación de aire y una selección adecuada de materiales que puedan resistir climas cálidos y húmedos.
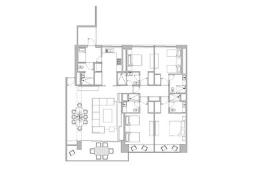
La intervención conectó la cocina, la sala y el comedor en una planta libre que permitió la ventilación cruzada en todo el departamento. Esto disminuyó el consumo total de energía y permitió que el espacio tuviera un confort térmico óptimo durante todo el año.
La planta libre también conduce a una mejor iluminación natural en toda la sala de estar. Los tonos neutros elegidos para el departamento, así como una iluminación predominantemente indirecta, contribuyen a crear un ambiente sofisticado y confortable durante todo el día y la noche. El elemento predominante de la intervención es una celosía que cubre el techo de la sala comedor, un entramado geométrico que se abre hacia el océano. Con el fin de hacer un ligero contraste con los tonos neutros, los muebles seleccionados para el proyecto fueron hechos de madera de parota. Algunos detalles en los muebles incluyen revestimientos de paredes en cabos náuticos y cubiertas de mármol. Al final del pasillo, las habitaciones ofrecen la comodidad perfecta, llena de texturas, tonos cálidos y el sonido del mar.
Fotos: Mauricio Salas






Copyright © 2021 PAIR Arquitectura - Todos los derechos reservados.