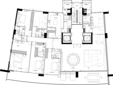
Gozando de un entorno natural inigualable, el departamento FH se encuentra en un conjunto residencial al sureste de la costa de Acapulco, México. Rodeado por el Océano Pacífico y la Laguna de Tres Palos, las espectaculares vistas enriquecen el acontecer cotidiano en su interior. Desarrollado para una familia grande, el diseño buscó brindar versatilidad y confort a cada usuario. Por ello, la intervención fue planeada para que todos los espacios convivan de manera directa en una planta semi abierta, pero puedan ser compartimentados dependiendo el grado de privacidad requerida para cada ocasión.
El ala este, se encuentra conformada por las cinco habitaciones, que fácilmente pueden independizarse del área pública a través de un panel corredizo que les brinda privacidad y aislamiento acústico. La estancia familiar, conformada por sala, comedor y bar, se encuentran vinculadas de manera directa con la terraza longitudinal que abarca el frente del departamento. La sala de tv se integra o separa, a discreción, de la estancia a través de otro panel hermético. De esta forma, cada una de las principales actividades: descanso, convivencia y entretenimiento se pueden llevar a cabo de manera independiente o compartida. Los servicios se encuentran en la parte posterior, gozando de la frescura del norte y una distinguida vista a la laguna.
La intervención de este espacio se centró en crear una experiencia sensorial, creando una atmosfera que induzca al usuario a la calma y el sosiego. Se tomó en cuenta el uso de materiales y tonalidades ideales para una vivienda en la playa. La gama cromática de muros, y mobiliario fijo se centró en tonos neutros y cálidos, contrastando con los accesorios y luminarias en color negro; logrando un diseño atemporal y elegante. Las texturas fueron primordiales para crear una experiencia táctil. Un poroso lambrín de mármol travertino, engalana el vestíbulo principal, recreando las texturas calizas del entorno natural. Los lambrines de cabos náuticos complementan la ecuación, dotando al mobiliario de una identidad acorde a su contexto.
El uso de iluminación artificial complementa de manera sutil e indirecta los espacios y le suma una intención al diseño acentuando los elementos característicos del proyecto. La suma de todos los elementos, con la iluminación natural del contexto, las tonalidades variantes a lo largo del día y la experiencia auditiva del mar, crean una inefable sensación de lugar que prioriza la experiencia humana.
Fotos: Mauricio Salas



Copyright © 2021 PAIR Arquitectura - Todos los derechos reservados.