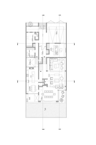
La casa GC es una vivienda de los años setenta que fue remodelada para redistribuir sus espacios, crear una atmósfera de bienestar y conectarla con su entorno. Su planta original, intricada y con un programa caduco, fue revitalizada al liberar los espacios de las columnas y muros que los subdividían. Moviendo una crujía completa de la casa, se logró crear un gran salón para una estancia familiar de doble altura y gran amplitud. La luz natural fue determinante para crear espacios de gran permeabilidad hacia el jardín posterior. El comedor, a través de sus extensos ventanales se transforma en una terraza techada con conexión directa hacia el jardín y área de asador. El extremo más alejado del jardín es iluminado a lo largo del día a través de un gran domo, vestigio de un antiguo patio. Dicho espacio ahora es ocupado por una gran biblioteca integrada al estar familiar. A lo largo del día el domo genera un as de luz que adorna los muros circundantes.
La paleta de color de la casa busca crear espacios acogedores a través de las maderas de encino, los muros ostión y las piedras en colores neutros. Una piedra galala arenada cubre las fachadas mientras que los pisos de toda el área pública son de mármol travertino. Con el objetivo de preservar el carácter de los materiales, las piedras fueron instaladas con acabados naturales, sin esmaltes o retapes.
El programa de la casa se desenvuelve de manera intuitiva. El acceso es a través de un pequeño vestíbulo forrado en madera de encino, cuyos lambrines ocultan las puertas del toilet, sala de tv y guardado. Al subir por la escalinata principal, el contraste de la escala es impactante. La estancia familiar de doble altura remata con un robusto muro blanco, cuyas sutiles líneas incorporan un gran librero y una chimenea de acero que contrasta con los neutros del resto del espacio.
El comedor, engalanado por un gran candil de piedra volcánica, se integra al jardín con vistas y diversos puntos de acceso. Así mismo se conecta con una gran cocina cuyo espacio fue liberado de mochetas y muros divisorios para crear un amplio salón dedicado a la convivencia que surge alrededor de los alimentos. El desayunador se abre a manera de terraza para integrarse con la terraza.
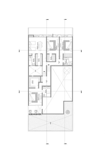
El patio que surge del corredor de servicio dota de luz natural a la cocina y la conecta con el área de lavado, la bodega y la recámara de servicio. Una gran escalera helicoidal de acero conforma una de las tres circulaciones verticales del proyecto. La escalera principal lleva en medio nivel a las recámaras secundarias. Un par de suites con baño y vestidor integrados, conforman dicho nivel con una habitación adicional que sirve como ludoteca. Medio nivel arriba se encuentra la recámara principal con su baño, vestidor y una terraza privada con una escalera metálica que lleva al huerto urbano y gimnasio del tercer nivel.
En su mayoría, los espacios están iluminados de manera indirecta, utilizando luz puntual sobre ciertos elementos a destacar. El efecto de dicha luz hace que las geometrías de la casa den la sensación de levitar. Así mismo se logra una atmósfera cálida que cambia de color con el atardecer. Los materiales naturales también son parte del interiorismo de la casa. Todo el mobiliario se conforma de maderas de nogal y mármoles negros para crear un elegante contraste. La integración de los materiales y las líneas contemporáneas del mobiliario hacen que los espacios sean acogedores y serenos.
La casa GC es un proyecto de renovación integral que logra aprovechar una estructura preexistente, revitalizándola y transformándola en un espacio atemporal con miras a la perpetuidad.
Fotos: Jaime Navarro






Copyright © 2021 PAIR Arquitectura - Todos los derechos reservados.