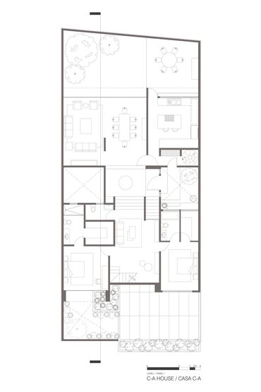
Ubicada en el poniente de la Ciudad de México, la Casa C-A se desplanta en un terreno con una pendiente ascendente desde la calle. Dicha característica permite dividir el volumen de la casa en dos bloques. El primer cuerpo, de tres niveles, alberga el área privada del usuario: tres recamaras, estar familiar, estudio y oficina. El segundo bloque contiene el programa público en dos niveles, conformado por cocina, sala, comedor, bodega, área de lavado y servicio.
Todas las habitaciones y espacios de la casa gozan de iluminación y ventilación natural gracias a la incorporación de patios y jardines alrededor de la casa y en su interior. Los amplios ventanales de la casa permiten que los espacios se abran a terrazas contiguas erosionando así las divisiones entre el interior y exterior. Esta característica permite crear atmosferas naturales con la aplicación de una paleta vegetal que combina nuevos elementos con características preexistentes del terreno.
La fachada sur poniente se caracteriza por la incorporación de jardineras adyacentes a todos los ventanales que brindan privacidad e incorporan la naturaleza al paisaje urbano en el que se encuentra la casa. La fachada posterior abre a manera de terraza al jardín a través de la altura y media de sala comedor. La Casa C-A se diseñó con líneas simples y elegantes para crear un proyecto con una estética contemporánea de amplitud y serenidad; apegado a las necesidades del usuario y combinando elementos arquitectónicos con elementos naturales que aportan no solo al interior de la residencia sino al entorno en el que se erigió.
Fotos: Mauricio Salas





Copyright © 2021 PAIR Arquitectura - Todos los derechos reservados.