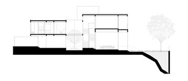
La Casa BR se encuentra en un conjunto residencial en la zona metropolitana del Valle de México. El terreno donde se desplanta tiene una pendiente descendente desde la calle que termina en un acantilado producto de la urbanización de la zona. El cambio de niveles a lo largo del lote, así como las vistas hacia el bosque fueron consideraciones prioritarias del proyecto. El dramático desnivel en la parte posterior creo la necesidad de contener el terreno, lo cual derivo en una excavación compensada; un movimiento de tierras mínimo que creo las condiciones para dejar un jardín a nivel de la estancia.
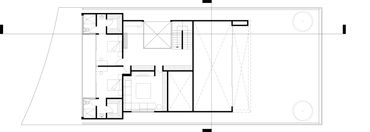
La distribución de la casa esta creada con el objetivo de abrir hacia el jardín la recamara principal y la estancia de altura y media. El acceso se lleva a cabo a nivel de calle a través de un pasillo que da una sensación de intimidad y escala humana. Dicha percepción se ve interrumpida de manera tajante al presenciar el cubo de escaleras, que busca exhibir el funcionamiento de la casa y a su vez aportar a la estrecha relación interior-exterior mediante un ventanal de doble altura. Esta interrupción de los cuerpos solidos de la casa enmarca un árbol que funge como personaje principal de la composición y testigo silencioso del tiempo por su carácter caducifolio. Dicho ventanal crea sombras diversas al interior de la casa a lo largo del día y dota de iluminación natural a los vestíbulos en todos los niveles. El juego de escalas llega a su apogeo al presenciar la monumental estancia al final del corredor revestido en madera. Es ahí donde se erosionan las divisiones entre el interior y exterior. La cristalera se abre para crear una sensación de amplitud y transformar la estancia en una terraza cubierta.
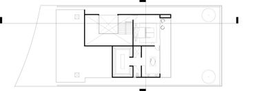
La altura y media que se logra en la estancia se debe a la decisión de elevar el bloque que conforma la recamara principal, desprendiendo a éste de la planta alta; dotándolo de privacidad y de manera contrastante, una apertura total al jardín. El resto del área privada esta conformada por dos recamaras, una sala de TV y un estudio abierto. En planta baja el bloque de servicio de la casa esta desplantado de manera lateral adyacente al vestíbulo de acceso y esta conformado por la cocina, recámara de servicio, baños y área de lavado.
La Casa BR se diseñó con trazos simples y una estética enfocada en la amplitud y serenidad; tratando de maximizar las virtudes derivadas de las necesidades del usuario y combinando elementos arquitectónicos con elementos naturales que aportan no solo al interior de la residencia sino también a su entorno.
Fotos: Mauricio Salas








Copyright © 2021 PAIR Arquitectura - Todos los derechos reservados.